築15 年の住宅メーカーのお宅のリ・ガーデンでした。大きくなりすぎたケヤキがあり、生垣に囲まれた直線的な庭は高低差があり、 隣の2 階が1 階と同じ高さで目隠しがないとカーテンも開けられない状態でした。 「もっと開放的で、目線が気にならず、四季を感じられる庭がほしい」という要望でした。 そこで、それまで直線的であったアプローチを鹿北石の小端積みで曲線的な石積みとし、樹木や草花を重ねて植えることで目線を隠し、四季が感じられ、 楽しめる庭をつくりました。東面にはレッドシダーのフェンスで目隠しをし、バラやクレマチスを誘引しています。 パーゴラのあるデッキは、蹲の湧水の音を聞きながら、ゆったりと読書やお茶が飲めるスペースです。


O 邸 ● DATA 植裁・客土・デッキ・ウッドフェンス(レッドシーダー材)・パーゴラ・小端積み・石張り・防草シート砂利敷き・蹲 樹木/アオダモ・シマサルスベリ・カシワバアジサイ・エゴノキ・ツリバナ・シラキ・シマネトリコ 草花/ガウラ・ギボウシ(寒河江)・コトネアスター・コツクビチア・バラ・クレマチス・フッキソウ・フイリナルコユリ ・ヤブランギガンディナ・セダム・ニューサイラン・クリスマスローズ・ヘンリーツタなど

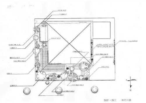
M 邸 ● DATA
植裁
樹木/イロハモミジ・カツラ・ガマズミステリーレ・テマリカンボ
ク・スモークツリー 草花/ニューサイラン・ギボウシ・ヤブラン・
ヒメウツギ・ゲンペイコギク・クレマチス・八重コデマリ
土砂降りの雨の中、お店にお越しになりました。どうしてもモミジを玄関横のスペースに植えたくて、探してあったのです。 スペイン風のお宅で、その前に5 m のイロハモミジ株立を植栽しました。何の違和感もなくなじんでいます。 シーボルトが日本から持ち帰ったオランダの生産者の農場にあったモミジを思い出しました。 ヨーロッパでもこのモミジが人気で、広がっていったそうです。施主さんの想いが生んだ庭だと思います。 環境条件が難しく、調べたり、生産者に聴いたりと大変勉強になりました。お客様の要望や希望にこたえることで、 どんどん知識や技術が引き出されます。完成した時に本当に喜んでくださり、こちらも大変うれしかったのを覚えています。 それ以来のお付き合いが続いています。
リ・ガーデンとは
|
雑木の庭の施工例
|
ご相談の流れ
|
メンテナンス
|
ショップ
|
会社概要
|
スタッフ
|
メール